Liam Hall

Circulation Space

2020

ARC1011
University of Toronto

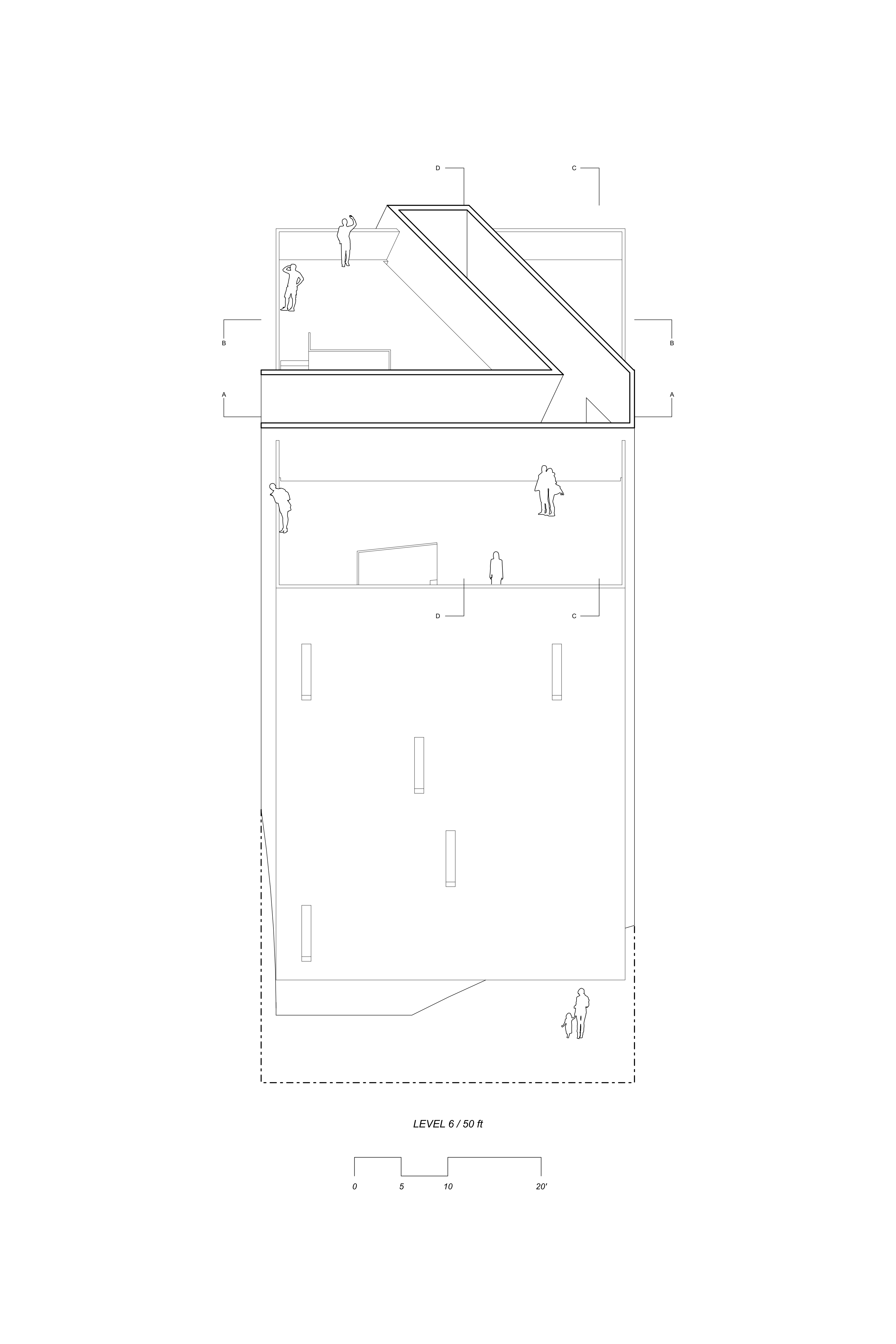
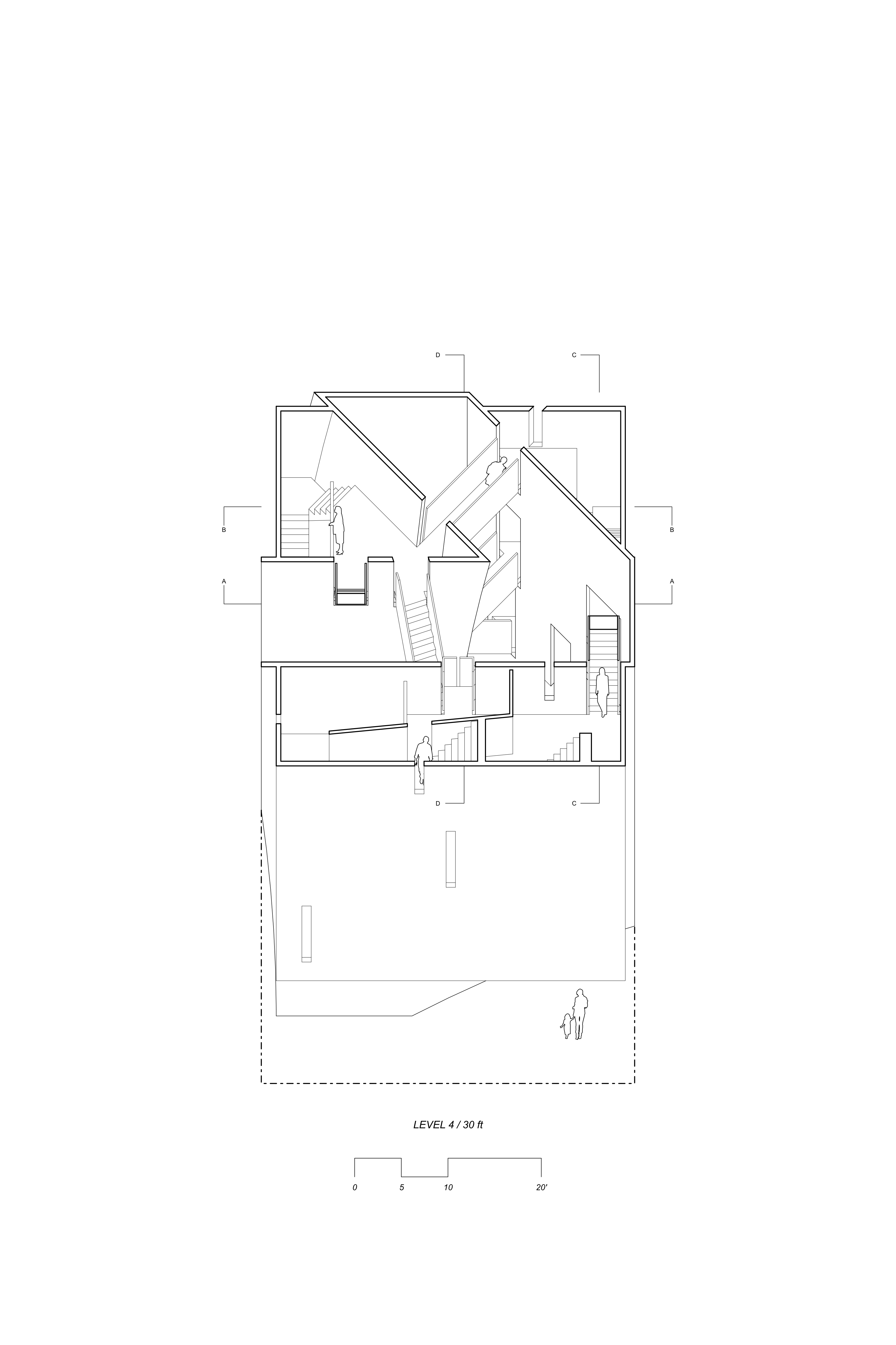
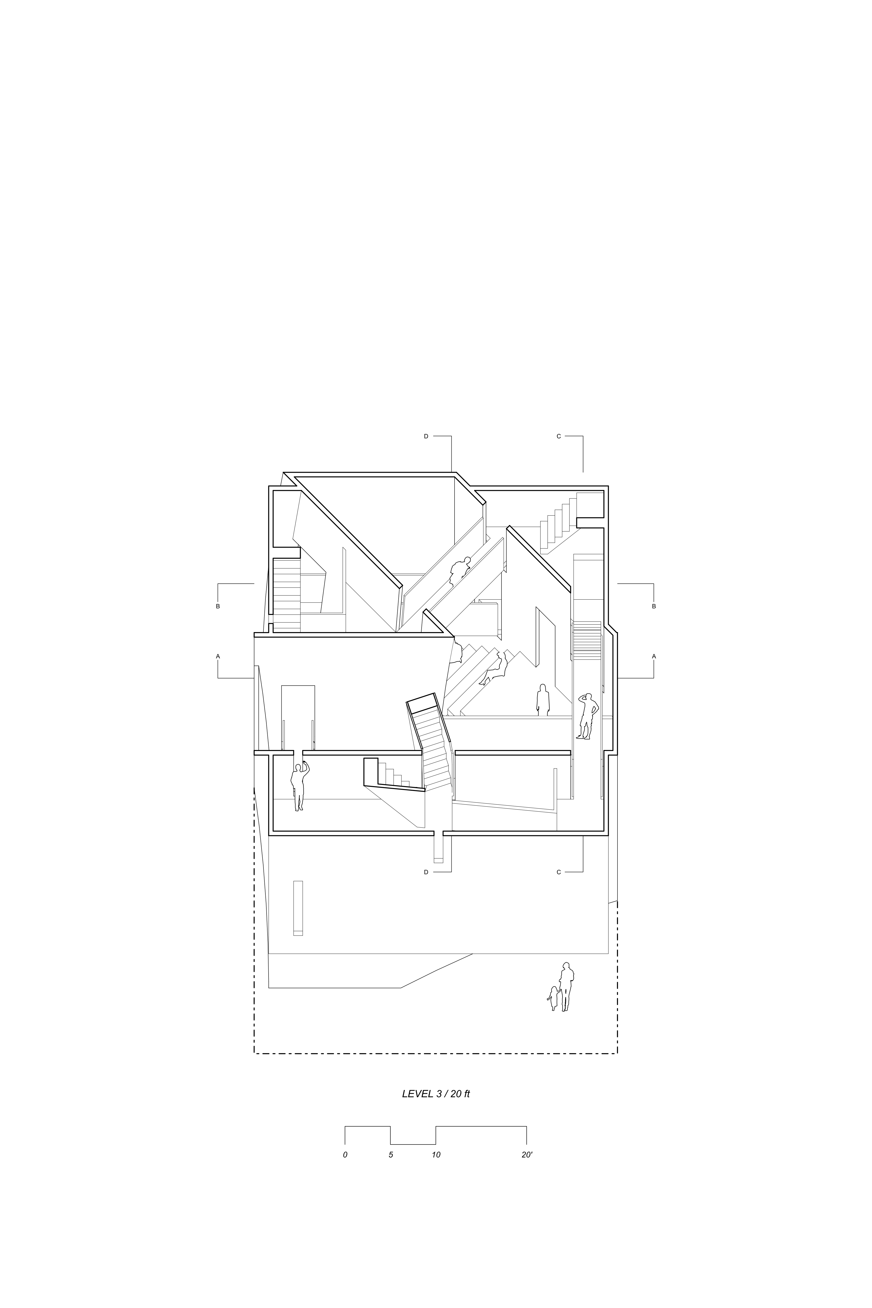
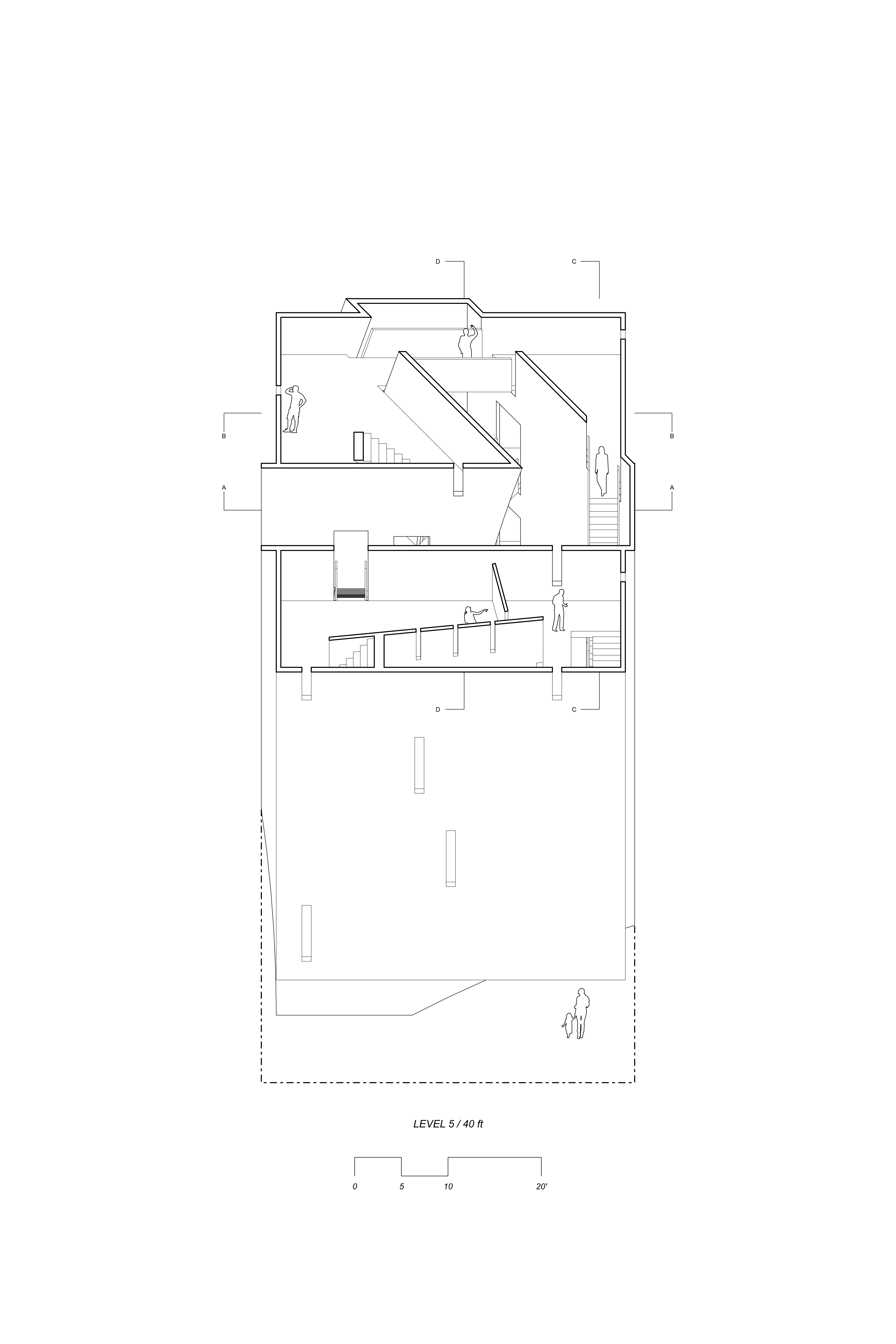
The project builds upon the simplicity of forms from a previous endeavor to craft an experiential architecture. It revolves around guiding occupants on a journey through interconnected spaces, with a focus on accentuating the formal qualities of the design. The journey commences in a communal space, uniting occupants in shared anticipation. As they progress, solitude gradually envelops them, while serendipitous moments arise, allowing for glimpses into others' experiences in various spaces. This immersive narrative unfolds as occupants transition from being observed to becoming observers themselves, offering a unique perspective on the architecture through the lens of others' interactions.

×