Liam Hall

Collective Space

2020

ARC1011
University of Toronto

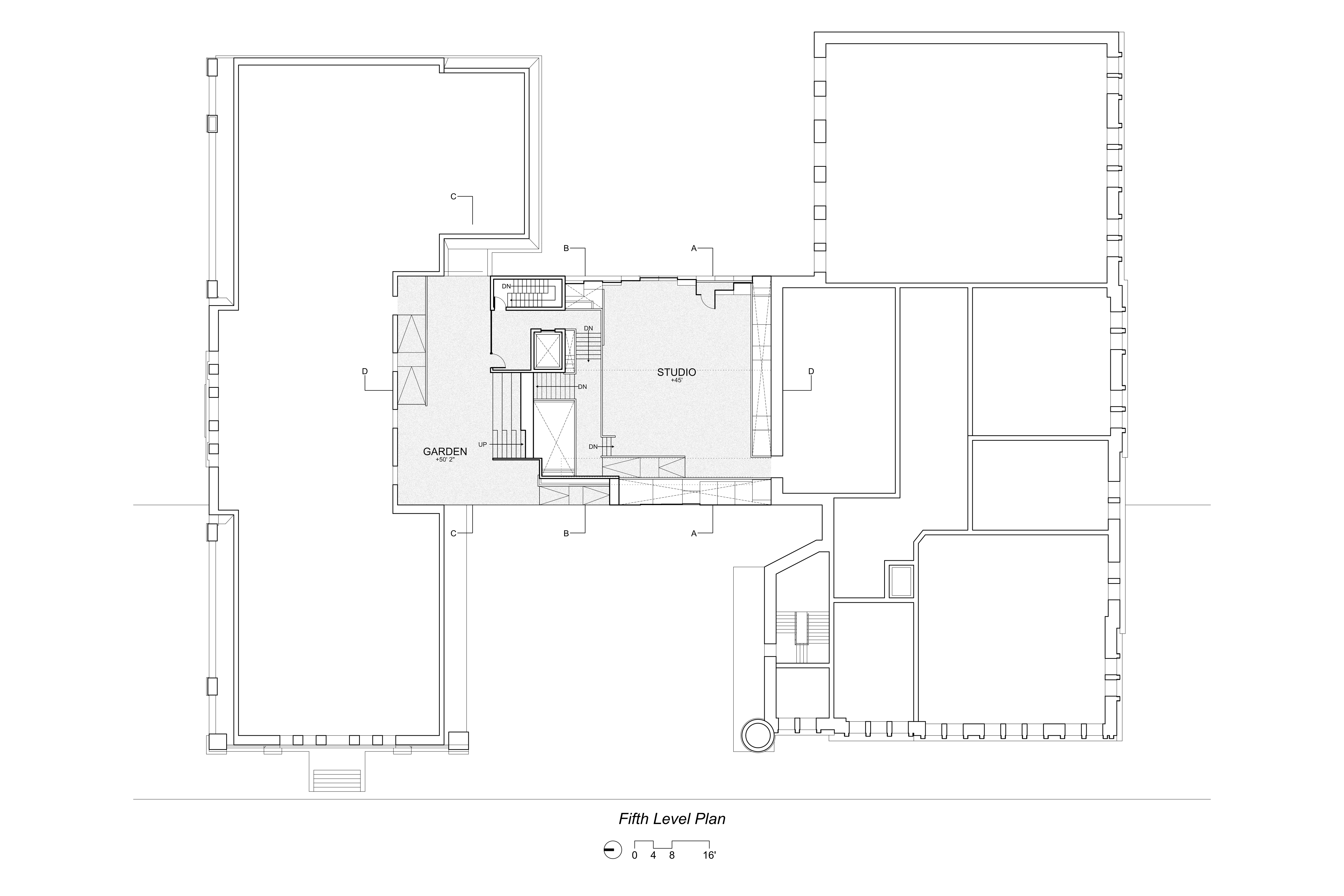
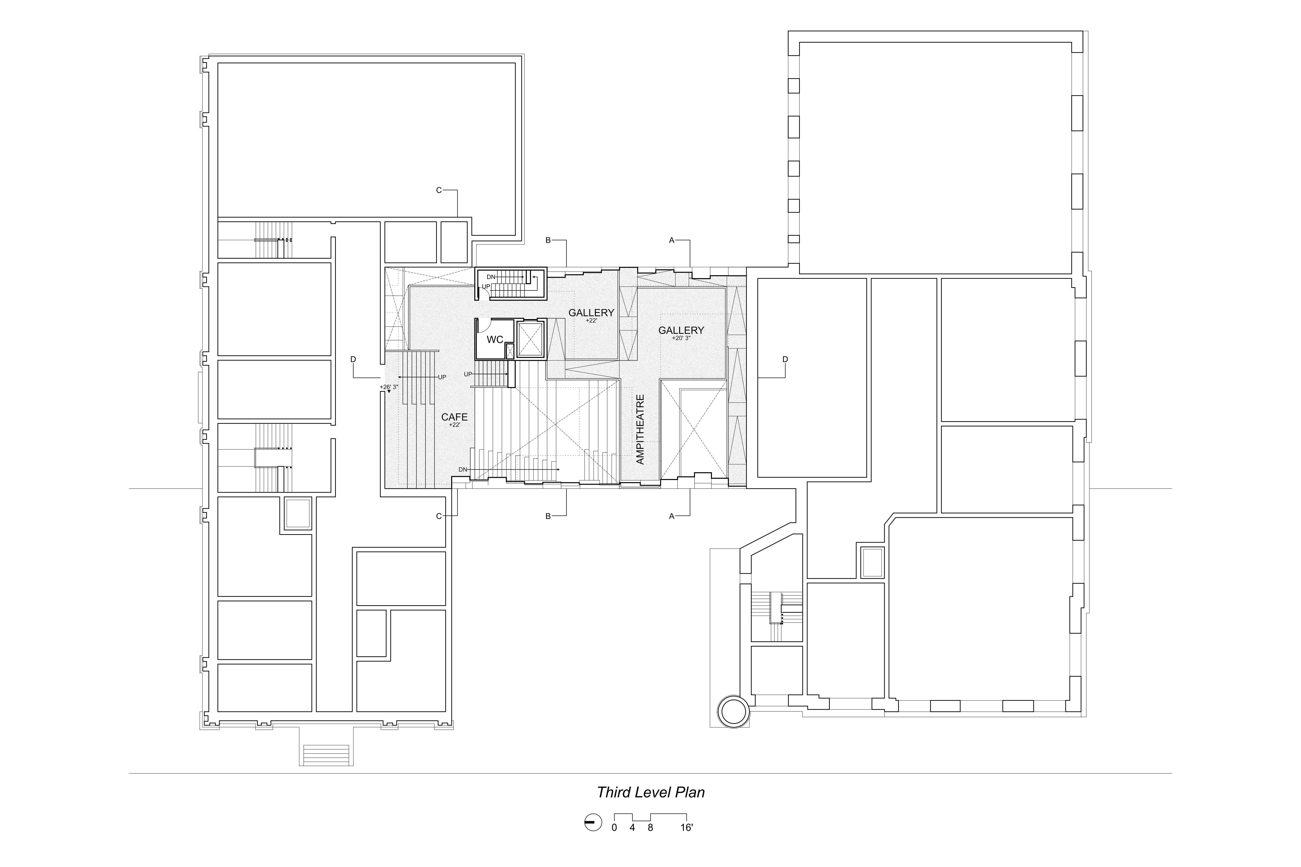
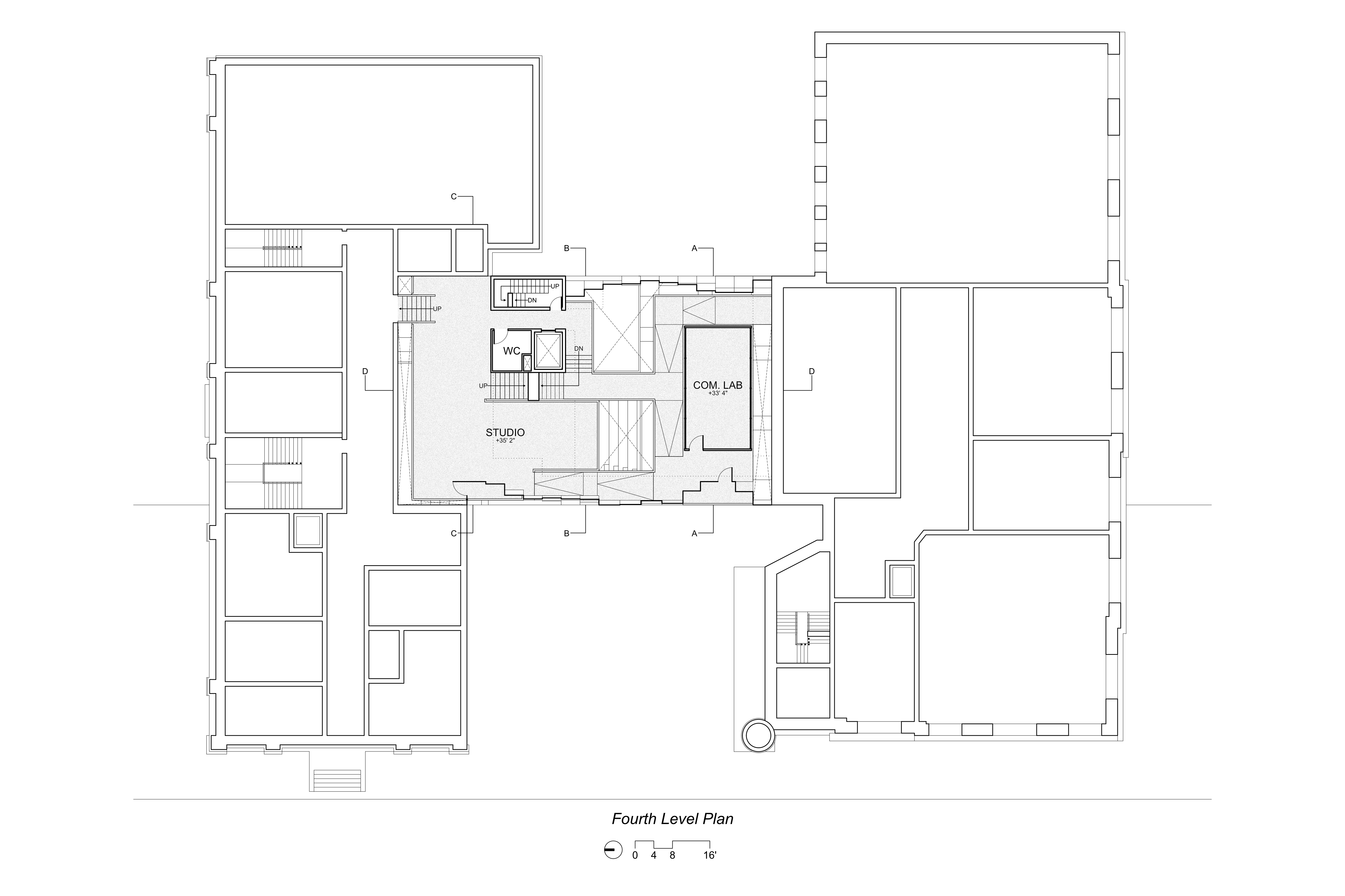
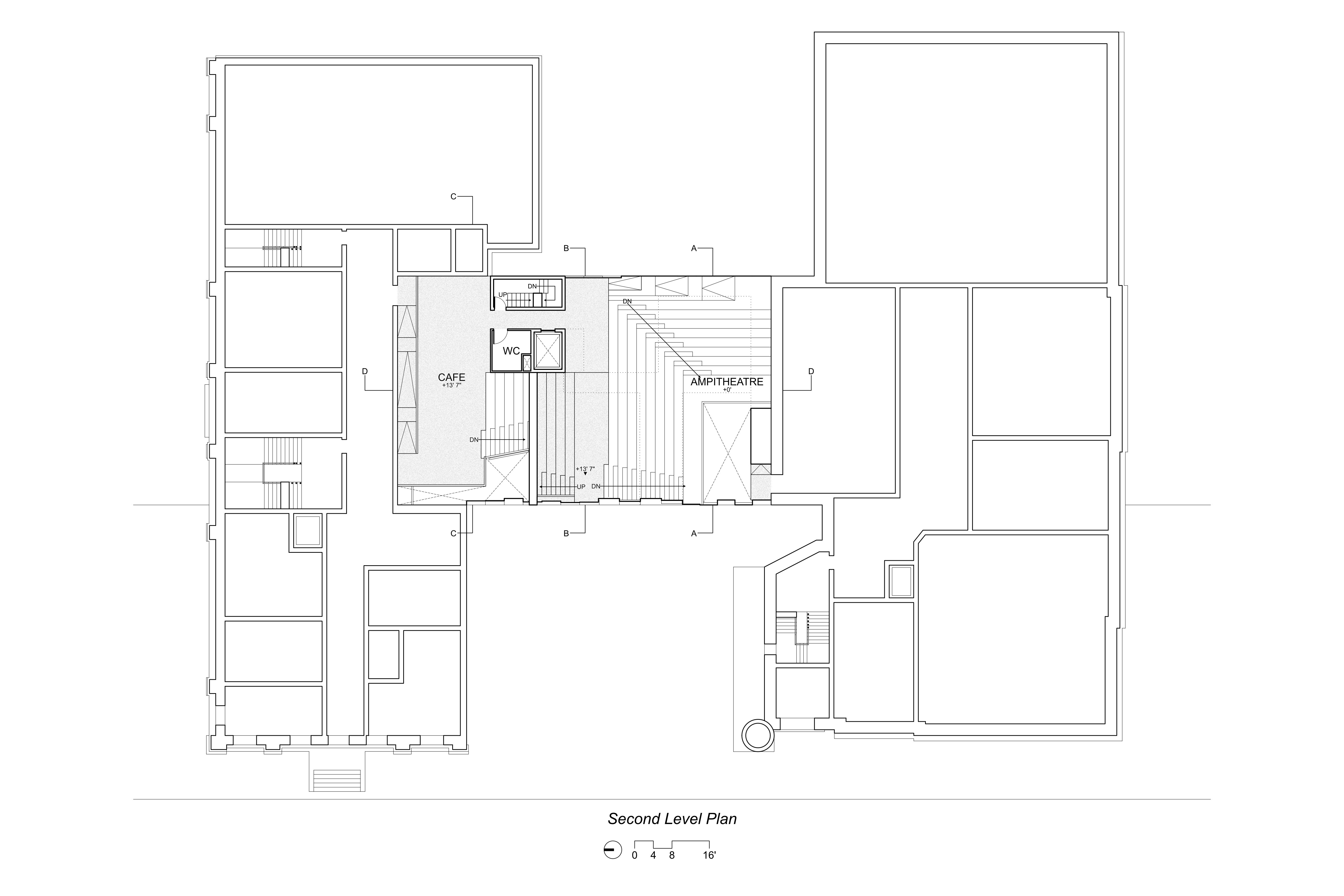
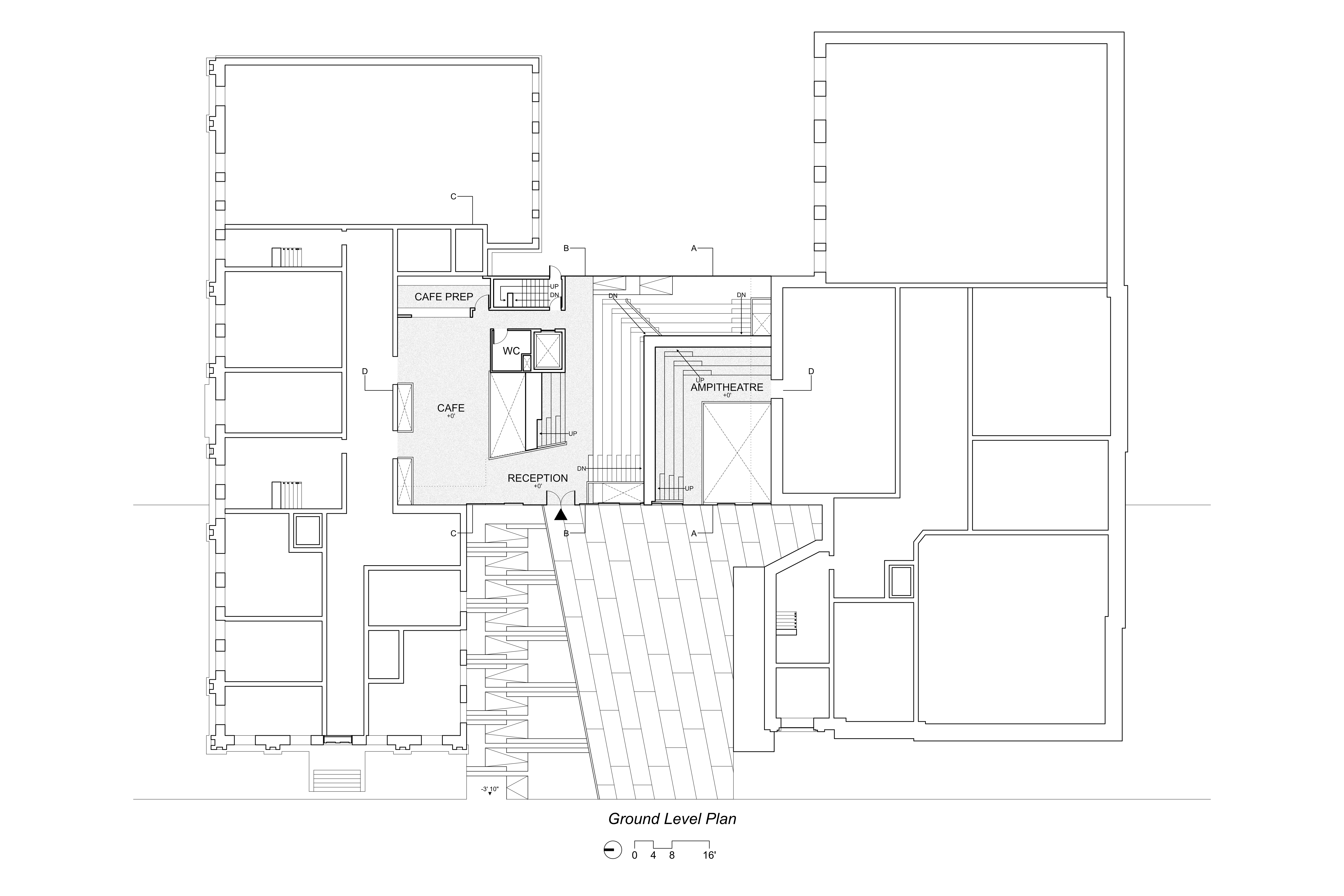
This project aimed to create a space for both art and architecture students as well as the surrounding public. The floorplates are staggered and overlap to create interconnection between the different program spaces allowing for occupants to observe and experience the other programs throughout the building. A large amphitheater space runs through the project acting as a circulation connection between the different spaces. The sound and visual connections between spaces are mitigated through different partitions based on preferences, such as adjustable curtains or movable partitions. On the exterior, these hanging floorplates protrude from the facade hinting to those passing by the interior layout of the project.

×